DIY HiVi Center Channel Speaker Project
Adam McCall
|
DIY Center Channel Speaker with HiVi F5 / SD1.1A
This center channel speaker was created to match and aid the 1.618 Hi-Vi 3-way tower speakers during surround sound reproduction. The main focus was to match the upper chamber of the 1.618 towers. However a ported enclosure was chosen to aid in the extension of the response. The same crossover point was used as the tower speakers. On a side note, it was specially constructed to fit perfectly in my TV stand.
General Info:
- Four - HiVi F5 Kevlar MidBass Drivers
- Two - HiVi SD1.1A Dome Tweeters
- Fully Shielded
- 170 watts RMS @ 4ohms
- 2nd / 3rd Order crossover at 4kHz
- Frequency Response: 60Hz - 20kHz
- Overall Dimension: 43"x 7"x 14"
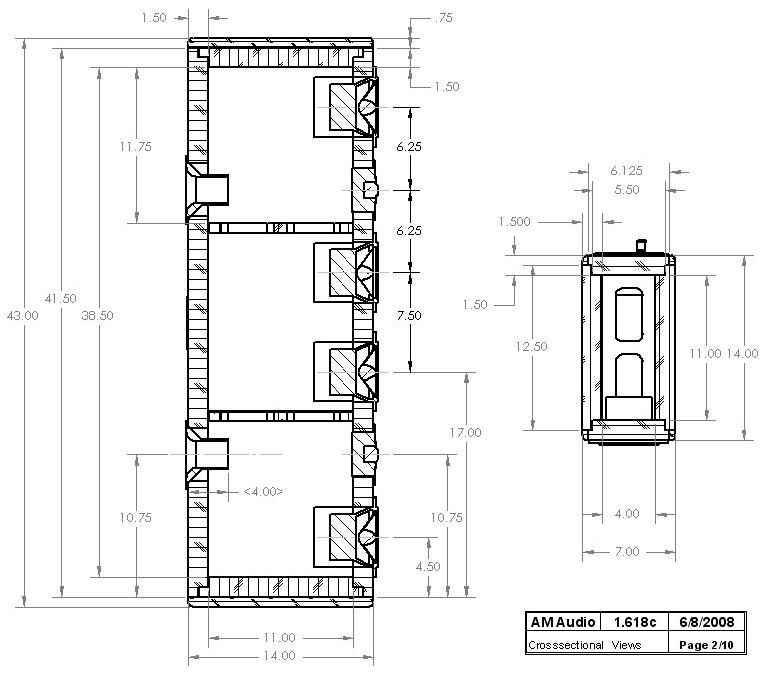
The enclosure design for the center channel is shown below.
Figure 1: HiVi Home Theatre Center Channel Speaker Enclosure Drawing
The crossover design for the center channel speaker and the modelled frequency response is shown below.
Figure 2: HiVi Home Theatre Center Channel Speaker Crossover Schematic
2-Way Crossover Network
Low-Pass (LP) Filter: 2nd-Order Butterworth, Corner Frequency: 4000 Hz
High-Pass (HP) Filter: 2nd-Order Butterworth, Corner Frequency: 4000 Hz
C1 = 3.3 uF, Polypropylene, 0.00764 ohms
C2 = 8.2 µF, Polypropylene, 0.00548 ohms
C3 = 15 µF, Polypropylene, 0.0048 ohms
L1 = 0.27 mH, Air Core(#18), 0.215 ohms
L2 = 0.13 mH, Air Core(#18), 0.16 ohms
Woofer Impedance Equalization Circuit
Req = 2.4 ohms
Ce = 25 uF
L-Pad Circuit: 1.32 dB
Rp1 = 0.51 ohms
Rp2 = 5.1 ohms
Figure 3: Modelled Frequency Response HiVi Center Channel Loudspeaker Enclosure
DIY Center Channel Speaker Construction
The center chanenel enclosure construction is shown in the photographs below.
Photograph 1: Center Channel Box Assembly
Photograph 2: MDF Center Channel ready for Painting
The assembled crossover and a quick sound check.
Photograph 3: Assembled HiVi F5 / SD1.1A Crossover
Photograph 4: Sound Check of Crossover Circuit
The finished center channel cabinet is then primed and painted using several coats of an oil based epoxy paint and then finished with red oak trim.
Photograph 5: HiVi F5 / SD1.1A Center Channel Speaker
DIY Center Channel Speaker Measurements
The measured room response for the home theater center channel is shown below.
Figure 4: HiVi F5 / SD1.1A Center Channel Measured In Room Response
Perfect! My home theatre front is now seamless. The center matches very well with the towers. Dialogue is very clear and has an excellent warmth quality to it. Only time will tell as I watch more and more movies. So far, Black Hawk Down did excellent! And the few HD channels I get that produce 5.1, I have no complaints other than there needs to be more channels!!!
DIY Center Channel Speaker - Parts List and Costs
A list of the parts used for this project and corresponding cost is provided in the table below. All of the parts for this project are available from Parts Express.
| PARTSEXPRESS PART# | DESCRIPTION | QTY | PRICE | TOTAL |
|---|---|---|---|---|
|
260-317
255-216 255-204 100-088 100-074 091-624 091-600 095-280 095-286 004-.51 004-2.4 004-5.1 027-432 027-438 027-426 027-420 297-416 297-435 080-722 MATRIX 2Flare OX6PAN3/4 OX6OVAL3/4 |
1lb Acousta Stuff
Jantzen .27mH 18awg Inductor Jantzen .13mH 18awg Inductor 16Awg Gray Wire 100ft 16Awg Red Wire 100ft Dayton Bpp-Sn Satin Binding Post Dayton Sbpp-Si Binding Post Plate 1/4" (16-14) Female - 50pcs .110" (16-14) Female - 50pcs Dayton .51 Ohm 10W Resistor Dayton 2.4 Ohm 10W Resistor Dayton 5.1 Ohm 10W Resistor Dayton 15uF Polypropylene Cap. Dayton 25uF Polypropylene Cap. Dayton 8.2uF Polyproplylene Cap. Dayton 3.3uF Polypropylene Cap. HiVi SD1.1A 1" Dome Tweeter HiVi F5 5" MidBass NTE Heat Shrink - Assort - 158pc Matrix Circuit Board (madisound.com) 2" Flared Port (madisound.com) #6 Pan Head 3/4" - Blk Ox & Wax (madisound.com) #6 Oval Head 3/4" - Blk Ox & Wax (madisound.com) |
2
1 1 1 1 1 1 1 1 1 1 1 1 1 1 1 2 4 1 1 2 12 24 |
$9.75
$5.18 $3.27 $14.70 $14.70 $15.96 $8.40 $3.98 $4.48 $1.25 $1.25 $1.25 $5.23 $6.58 $3.37 $1.69 $12.60 $35.64 $10.00 $7.00 $8.80 $0.03 $0.05 |
$19.50
$5.29 $3.27 $14.70 $14.70 $15.96 $8.40 $3.98 $4.48 $1.25 $1.25 $1.25 $5.23 $6.58 $3.37 $1.69 $25.20 $142.56 $10.00 $7.00 $17.60 $0.36 $1.20 |
Parts Total: $314.71US
Cabinets (MDF, Red Oak, Screws, Caulking, Glue, Lexan, Screws, Stain, Paint, Wood filler...): ~$110US
Total Project Cost: ~$425US
Cost estimate is a little on the high side as some of the material (wire, screws, glue, paint ...) may be left over from the Tower or Subwoofer build.
Photograph 6: DIY HiVi Home Theatre Speakers
The above photo shows the HiVi Center Channel with the 1.618 HiVi 3-way Tower Loudspeakers and the HiVi SP10 Subwoofer.
